
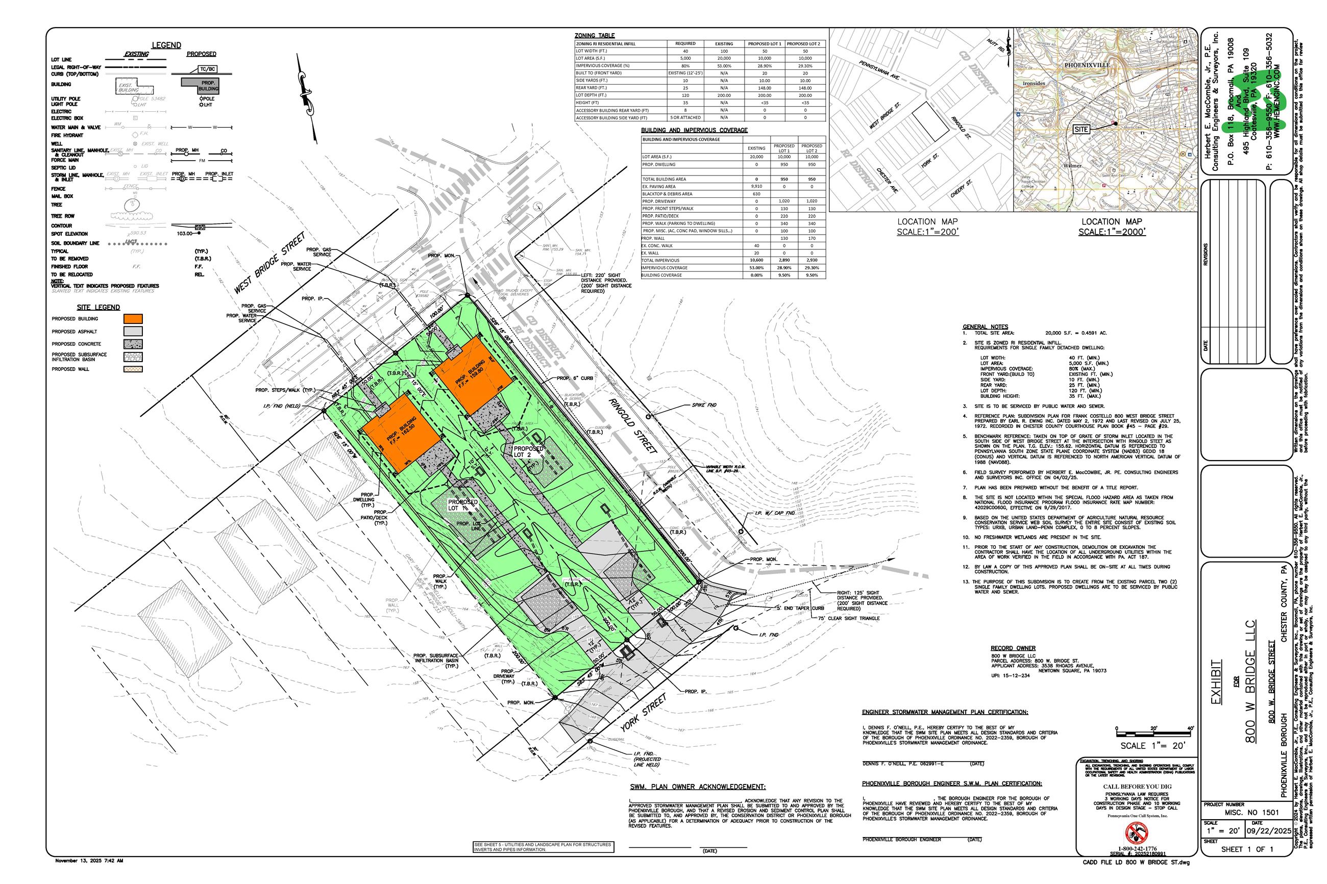
Location: 800 Bridge Street
Applicant: 800 Bridge Street, LLC
Application Date: 10/7/2025
Status as of 10/8/2025: Under Review by Planning Commission
Summary: The redevelopment proposes subdividing an existing vacant residential site into two (2) lots for the construction of two (2) single-family detached dwellings.
Project Documents:
Application
Plan Set
Reviews